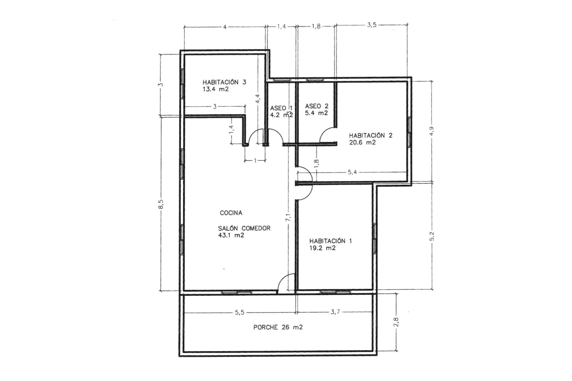
Charmant landgoed met privétuinen in Dolores. Dit prachtig gepresenteerde landgoed, gelegen in een rustige landelijke omgeving net buiten het charmante dorpje Dolores, biedt een authentieke mediterrane levensstijl, omgeven door landbouwgrond en het hele jaar door groen. Gelegen aan een doodlopende privéweg , alleen toegankelijk voor bewoners, creëert het een vredige en afgelegen sfeer. De woning biedt tevens gemakkelijke toegang tot de omliggende plaatsen Almoradí, Algorfa, Ciudad Quesada, Guardamar del Segura en La Marina , waardoor landelijke rust gecombineerd wordt met nabijgelegen steden, kustvoorzieningen en stranden op slechts 15 minuten rijden. Het pand is toegankelijk via een eigen, afgesloten toegangspoort , die leidt naar een brede oprit met voldoende parkeerruimte voor meerdere voertuigen. Naast de ingang bevindt zich een garage, die tevens de mogelijkheid biedt om een aantrekkelijke decoratieve fontein te plaatsen, wat een uitnodigende en charmante entree creëert. Het hoofdhuis bestaat uit drie goed geproportioneerde slaapkamers en twee badkamers , allemaal gelijkvloers, plus een aparte bijkeuken voor extra gemak. Het hart van de woning is de open keuken en woonkamer , een lichte en uitnodigende ruimte, ideaal voor zowel dagelijks gebruik als voor het ontvangen van gasten. De woonkamer is voorzien van een sfeervolle houtkachel , die zorgt voor warmte en gezelligheid tijdens de koudere maanden. Aan de voorzijde van het pand biedt een zonnige, glazen serre een prachtig uitzicht op het omliggende landschap en het zwembad , waardoor het een perfecte plek is om te zonnebaden. De woning verkeert in uitstekende staat, is direct te betrekken en beschikt over een bewoningsvergunning , iets wat veel vakantiehuizen in de omgeving missen, wat gemoedsrust biedt voor zowel permanente bewoning als vakantieverhuur. Een belangrijk kenmerk van de woning is het aparte gastenverblijf , met een ruime tweepersoonsslaapkamer en een eigen badkamer. Dit is ideaal voor bezoekende familie en vrienden, voor zelfstandig wonen of als potentiële verhuurwoning. Grenzend aan het gastenverblijf bevindt zich de garage, die, indien niet langer nodig voor parkeren, kan worden omgebouwd tot een woonkamer met keuken. Zo ontstaat een volledig zelfstandig gastenappartement. Buiten is het pand omgeven door uitgestrekte, volledig omheinde privétuinen , die absolute rust en volop ruimte bieden om van het buitenleven te genieten. Het aangrenzende landbouwgebied, waar het hele jaar door diverse groenten worden verbouwd, versterkt de landelijke charme en biedt panoramische uitzichten die met de seizoenen veranderen . Ondanks de rustige ligging aan een doodlopende straat, ligt de woning op korte rijafstand van alle voorzieningen van Dolores, met winkels, restaurants en andere diensten binnen handbereik, evenals gunstige verbindingen met de Costa Blanca en belangrijke wegennetwerken. Een unieke kans om een direct bewoonbaar landelijk pand te kopen met gastenverblijf, houtkachel, zonnige kas, privacy, uitzicht op de bergen en een bewoningsvergunning , op een aantrekkelijke landelijke locatie. Neem vandaag nog contact met ons op om een persoonlijk of virtueel bezoek te regelen en ontdek dit uitzonderlijke landgoed zelf.
4
3
222m2
3.050m2
Ja
Contacteer mij via Whatsapp of vul het aanvraagformulier in