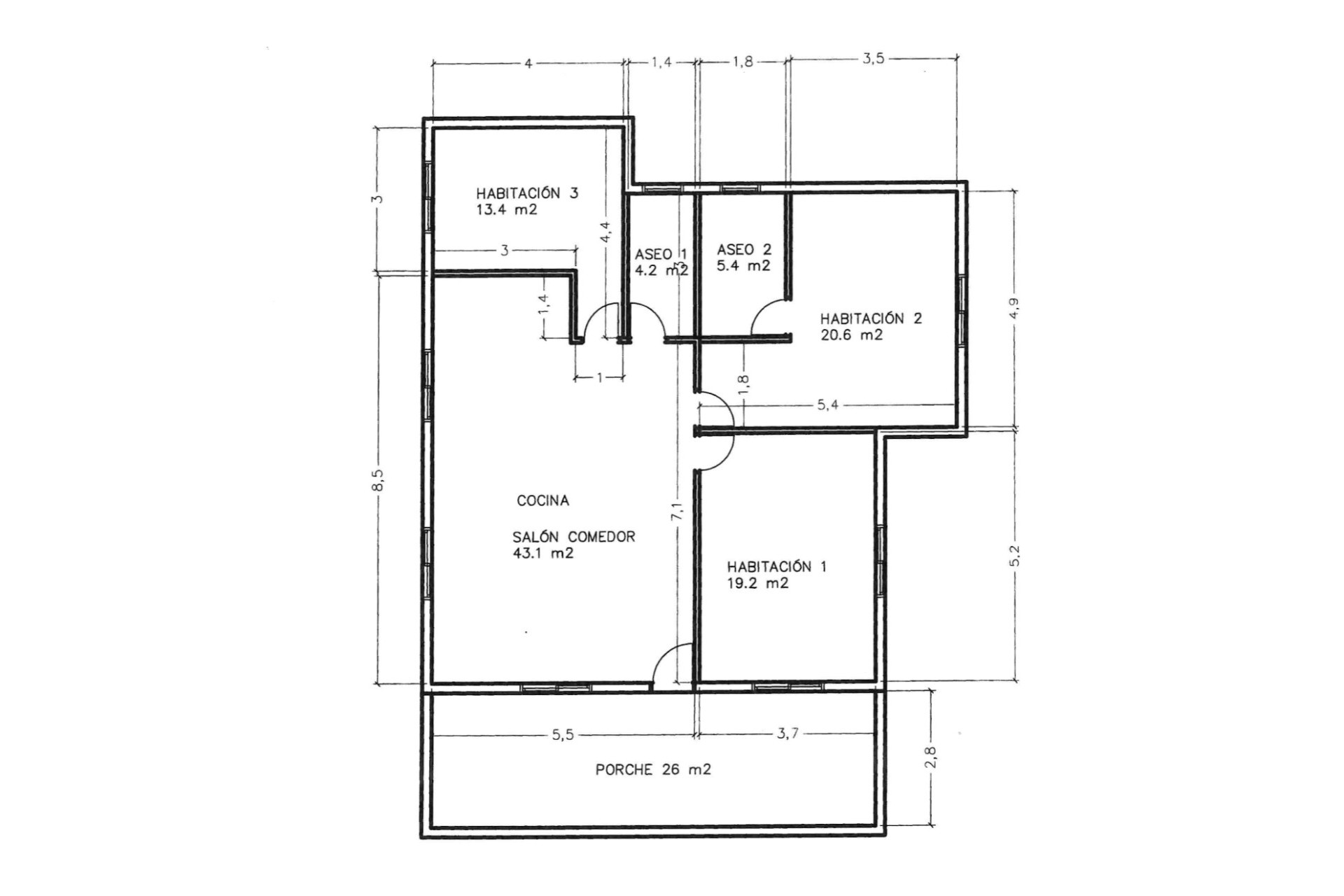
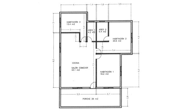
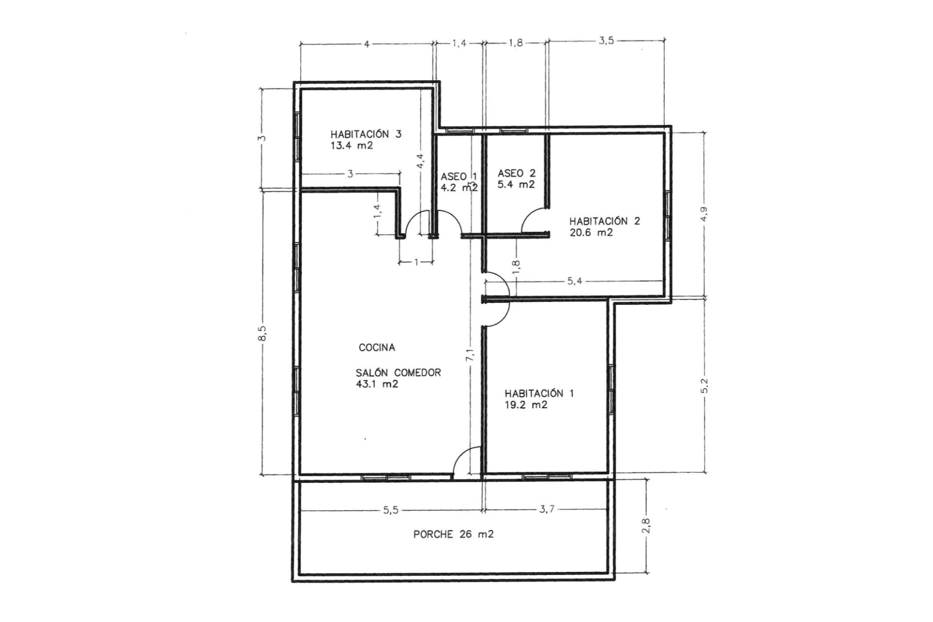
ENCANTADORA FINCA DE CAMPO CON JARDINES PRIVADOS EN DOLORES Ubicada en una tranquila zona rural a las afueras del encantador pueblo de Dolores, esta finca rural, bellamente presentada, ofrece un auténtico estilo de vida mediterráneo rodeado de campos de cultivo y vegetación durante todo el año. Ubicada en una calle privada sin salida , solo los residentes pueden acceder a ella, creando un ambiente muy tranquilo y apacible. La propiedad también disfruta de fácil acceso a las zonas circundantes de Almoradí, Algorfa, Ciudad Quesada, Guardamar del Segura y La Marina , combinando la tranquilidad rural con pueblos cercanos, comodidades costeras y playas a solo 15 minutos en coche. Se accede a la finca a través de una entrada privada con portón , y da a un amplio camino de entrada con amplio aparcamiento para varios vehículos. Junto a la entrada hay un garaje, que también ofrece la posibilidad de crear una atractiva fuente decorativa, creando una acogedora y encantadora sensación de llegada. La casa principal consta de tres dormitorios bien proporcionados y dos baños , todos distribuidos en una sola planta, además de un lavadero independiente para mayor comodidad. El corazón de la casa es la cocina y el salón de planta abierta , un espacio luminoso y acogedor, ideal tanto para el día a día como para el entretenimiento. El salón cuenta con una encantadora estufa de leña , que aporta encanto y calidez durante los meses más fríos. En la parte delantera de la propiedad, un soleado invernadero acristalado ofrece hermosas vistas al campo y la piscina circundantes , convirtiéndolo en un lugar perfecto para tomar el sol. La propiedad se presenta en excelentes condiciones, lista para entrar a vivir, y cuenta con certificado de habitabilidad , algo que muchas casas turísticas de la zona no tienen, lo que brinda tranquilidad tanto para vivir a tiempo completo como para vacaciones. Un punto clave de la finca es el anexo independiente para invitados , que cuenta con un espacioso dormitorio doble con baño en suite, ideal para visitas de familiares y amigos, para vivir de forma independiente o como posible alquiler. Junto al anexo se encuentra el garaje, que, si ya no se necesita para aparcar, podría convertirse en salón y cocina, convirtiendo el anexo en un alojamiento totalmente independiente para invitados. En el exterior, la propiedad está rodeada de amplios jardines privados , completamente protegidos, que ofrecen tranquilidad absoluta y amplio espacio para disfrutar al aire libre. Las tierras de cultivo vecinas, donde se cultiva una variedad de hortalizas durante todo el año, realzan el encanto rural y ofrecen vistas panorámicas que cambian con las estaciones . A pesar de su tranquila ubicación en una calle sin salida, la finca se encuentra a un corto trayecto en coche de las comodidades de Dolores, con tiendas, restaurantes y servicios de fácil acceso, así como conexiones convenientes con la costa de la Costa Blanca y las principales redes de carreteras. Una oportunidad única de adquirir una finca rural lista para mudarse con alojamiento para invitados, estufa de leña, invernadero soleado, privacidad, vistas a la montaña y un certificado de habitabilidad , en una ubicación rural deseable. Contáctenos hoy para concertar su visita en persona o virtual y descubrir esta excepcional finca rural por sí mismo.
4
3
222m2
3.050m2
Sí
Póngase en contacto con Julia a través de Whatsapp o rellene el formulario de contacto.